Description
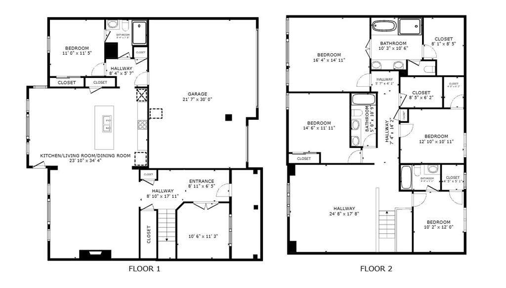
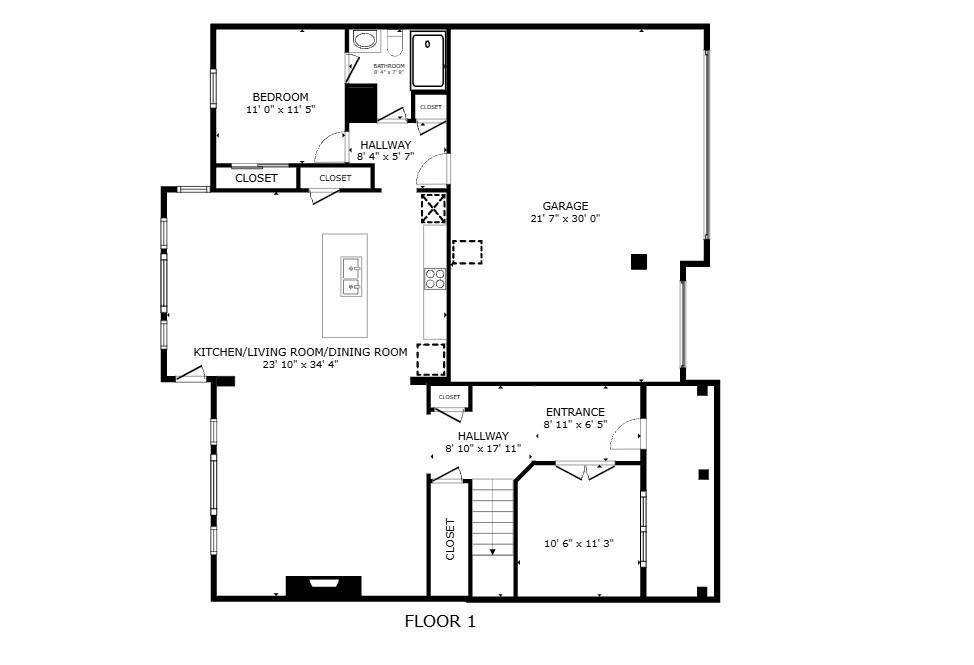
Back on Market - No Fault of Seller - Clean Inspection Report! Welcome to 39 Floating Leaf Way – Modern Comfort in the Heart of Edenwood! Set within the sought-after Edenwood community in North Paulding, this beautiful 5-bedroom, 4-bath Craftsman-style home blends classic charm with modern functionality. Built in 2017 and offering over 3,400 square feet of living space, this home has the perfect layout for today’s lifestyle — with a full guest suite and bath on the main level and four additional bedrooms plus three full baths upstairs. Step inside and immediately feel at home in the light-filled foyer with hardwood floors and elegant trim details. A private office with French doors sits just off the entry, ideal for remote work or quiet study. The open-concept design flows seamlessly into a spacious family room featuring custom built-ins, a gas fireplace, and oversized windows that fill the space with natural light and serene backyard views. At the heart of the home, the chef’s kitchen impresses with granite countertops, a large center island with bar seating, stainless-steel appliances, double ovens, gas cooktop, white cabinetry, and a subway tile backsplash. The kitchen opens to the family room and dining area, creating the perfect gathering space for family and friends. Upstairs, a generous loft area offers a flexible secondary living space — great for a playroom, media room, or lounge. The primary suite is a peaceful retreat with a tray ceiling, spacious layout, and spa-inspired bath featuring dual vanities, a soaking tub, separate glass-enclosed shower, and access to a large walk-in closet. Three additional upstairs bedrooms each feature ample closet space and easy access to two full baths. Step outside to a private, fenced backyard with a patio seating area, perfect for entertaining, outdoor dining, or simply enjoying Georgia’s sunny days. The level yard offers plenty of room to play, garden, or unwind in your own outdoor retreat. Located in Edenwood, one of Dallas’s most desirable communities, residents enjoy resort-style amenities including: A beautiful clubhouse with gathering areas Multiple swimming pools, including a splash pad and water slides Lighted tennis and pickleball courts Playgrounds, parks, and walking trails Fitness center, green spaces, and community events Zoned for highly rated North Paulding schools — Burnt Hickory Elementary, Sammy McClure Middle, and North Paulding High — this home offers the ideal blend of community, convenience, and comfort. You’ll love being minutes from shopping, dining, and recreation along Cedarcrest Road and Highway 41, with easy access to Acworth, Cartersville, LakePoint Sports Complex, and Downtown Dallas. Whether you’re hosting friends, working from home, or relaxing at the end of the day, 39 Floating Leaf Way delivers the perfect balance of space, style, and lifestyle in a location you’ll love to call home.
-
5BEDS
-
0.25ACRES
-
4BATHS
-
01/2 BATHS
-
3,424SQFT
-
$150$/SQFT
School Information
Description
Back on Market - No Fault of Seller - Clean Inspection Report! Welcome to 39 Floating Leaf Way – Modern Comfort in the Heart of Edenwood! Set within the sought-after Edenwood community in North Paulding, this beautiful 5-bedroom, 4-bath Craftsman-style home blends classic charm with modern functionality. Built in 2017 and offering over 3,400 square feet of living space, this home has the perfect layout for today’s lifestyle — with a full guest suite and bath on the main level and four additional bedrooms plus three full baths upstairs. Step inside and immediately feel at home in the light-filled foyer with hardwood floors and elegant trim details. A private office with French doors sits just off the entry, ideal for remote work or quiet study. The open-concept design flows seamlessly into a spacious family room featuring custom built-ins, a gas fireplace, and oversized windows that fill the space with natural light and serene backyard views. At the heart of the home, the chef’s kitchen impresses with granite countertops, a large center island with bar seating, stainless-steel appliances, double ovens, gas cooktop, white cabinetry, and a subway tile backsplash. The kitchen opens to the family room and dining area, creating the perfect gathering space for family and friends. Upstairs, a generous loft area offers a flexible secondary living space — great for a playroom, media room, or lounge. The primary suite is a peaceful retreat with a tray ceiling, spacious layout, and spa-inspired bath featuring dual vanities, a soaking tub, separate glass-enclosed shower, and access to a large walk-in closet. Three additional upstairs bedrooms each feature ample closet space and easy access to two full baths. Step outside to a private, fenced backyard with a patio seating area, perfect for entertaining, outdoor dining, or simply enjoying Georgia’s sunny days. The level yard offers plenty of room to play, garden, or unwind in your own outdoor retreat. Located in Edenwood, one of Dallas’s most desirable communities, residents enjoy resort-style amenities including: A beautiful clubhouse with gathering areas Multiple swimming pools, including a splash pad and water slides Lighted tennis and pickleball courts Playgrounds, parks, and walking trails Fitness center, green spaces, and community events Zoned for highly rated North Paulding schools — Burnt Hickory Elementary, Sammy McClure Middle, and North Paulding High — this home offers the ideal blend of community, convenience, and comfort. You’ll love being minutes from shopping, dining, and recreation along Cedarcrest Road and Highway 41, with easy access to Acworth, Cartersville, LakePoint Sports Complex, and Downtown Dallas. Whether you’re hosting friends, working from home, or relaxing at the end of the day, 39 Floating Leaf Way delivers the perfect balance of space, style, and lifestyle in a location you’ll love to call home.
Listings identified with the FMLS IDX logo come from FMLS, are held by brokerage firms other than the owner of this website and the listing brokerage is identified in any listing details. Information is deemed reliable but is not guaranteed.
If you believe any FMLS listing contains material that infringes your copyrighted work, please click here to review our DMCA policy and learn how to submit a takedown request.
© 2026 First Multiple Listing Service, Inc. Data last updated 2026-02-08T18:03:59.357. For issues regarding this website, please contact BoomTown.
